No products in the cart.
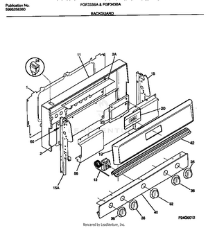
02 - BACKGUARD
03 - BURNER
04 - BODY
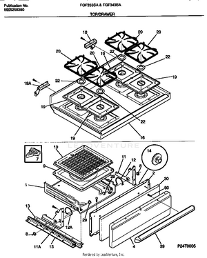
05 - TOP/DRAWER
06 - DOOR
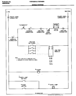
08 - WIRING DIAGRAM