No products in the cart.
01 - COVER
03 - DOORS
05 - CABINET
07 - SHELVES
09 - SYSTEM
11 - ICE MAKER
12 - WIRING SCHEMATIC
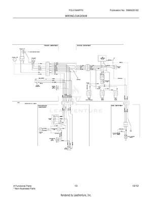
13 - WIRING DIAGRAM