No products in the cart.
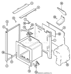
01 - BODY
02 - CONTROL PANEL
03 - DOOR/DRAWER
04 - GAS CONTROLS
05 - OVEN/BASE
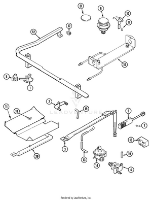
06 - TOP ASSEMBLY
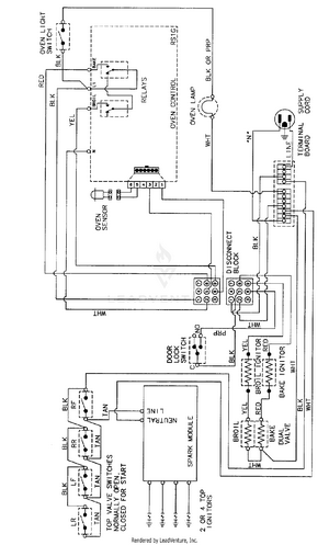
07 - WIRING INFORMATION